Duplex for Sale in Caltrano

150.000 €

Duplex - Caltrano (VI)
Contratto: Sale - RAT1053
Condividi

240 mq

3 camere

Efficenza energetica:

Descrizione

Caltrano - Fraz. di Mosson

Se stai cercando una porzione di bifamiliare in zona residenziale tranquilla e comoda al centro con ampio giardino, questa soluzione da ristrutturare e' cio' che fa per te.

Prezzo a partire da € 150.000

CHIAMACI ORA allo 0445.827282 e fissa un appuntamento per tutti i dettagli.
------------------------------------------------------------------------------------------------------------------------

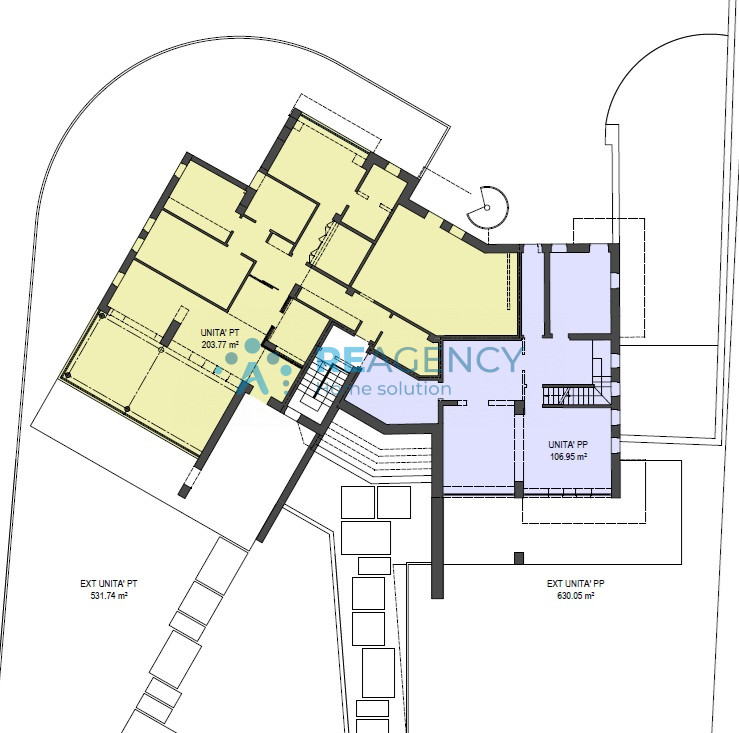
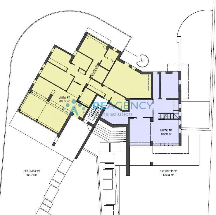
Proponiamo in vendita due porzioni di bifamiliare da realizzarsi in ristrutturazione ed ampliamento di villa singola esistente su ampio lotto.

Porzione di bifamiliare A:

Prezzo € 150.000
Mq commerciali abitazione 240
Abitazione al piano terra rialzato

Porzione di bifamiliare di circa 240 mq commerciali composta da:
- zona giorno
- tre camere
- quattro servizi
- taverna
- giardino esclusivo di 530mq
Completano la proprieta' posti auto coperti nell'interrato e cantina.
COSTO STIMATO DI RISTRUTTURAZIONE € 300.000


Porzione di bifamiliare B:

Prezzo € 300.000
Mq commerciali abitazione 360
Abitazione al piano terra rialzato e piano primo

Porzione di bifamiliare su due livelli composta da:
Al piano primo
- cucina abitabile
- terrazzo coperto con caminetto
- lavanderia
- ampio soggiorno
- tre camere
- tre servizi

Al piano terra rialzato
- taverna
- locali tecnici/lavanderia
- giardino esclusivo di 630 mq

Completano la proprieta' posti auto coperti nell'interrato e cantina.
COSTO STIMATO DI RISTRUTTURAZIONE DAI 120.000€ ai 250.000€ (possibilita' di ristrutturare solo il piano abitativo al piano primo con € 120.000 o possibilita' di ristrutturare anche la taverna in parte gia' esistente per un totale di € 250.000)

Sei interessato?
CHIAMACI subito allo 0445.827282 e fissa un appuntamento per tutti i dettagli con la nostra agente immobiliare STEFANIA LANARO.
Rif RAT1053
REAGENCY HOME SOLUTION – Thiene
Studio immobiliare associato
0445.827282
Corso G. Garibaldi 53
Thiene (VI) 36016

------------------------------------------------------------------------------------------------------------------------
REAGENCY e' il brand commerciale di RECapital, e rappresenta la rete vendita composta da agenti immobiliari altamente qualificati attivi su tutto il territorio nazionale.
Abbiamo dato vita a questa divisione con una visione chiara: offrire un servizio immobiliare completo e innovativo, capace di soddisfare ogni esigenza — dal privato all’azienda — con soluzioni su misura e consulenze specialistiche che spaziano dall’intermediazione alla strategia.
A guidarci e' un approccio concreto e orientato ai risultati, sostenuto da un team affiatato di professionisti con competenze complementari e un metodo di lavoro serio, trasparente e affidabile. Lo confermano oltre 530 recensioni positive, testimonianza della fiducia conquistata sul campo.
Siamo organizzati in team dedicati per segmento di mercato e tipologia di cliente, cosi' da offrire un supporto mirato attraverso servizi di advisory, brokerage e agency opinion.
Grazie a una presenza capillare sul territorio, contiamo oggi 6 sedi operative — Montecchio Maggiore, Vicenza, Creazzo, Altavilla Vicentina, Costabissara e Thiene — e una squadra di oltre 32 professionisti che segue l’intermediazione immobiliari in tutta Italia, sia per clienti privati sia per importanti portafogli di fondi, banche e investitori istituzionali, su asset di ogni categoria d’uso.
REAGENCY. Il tuo partner di fiducia nel Real Estate.

State maintenance

To be restructured

Dettagli

  • Tavern
  • Garden
  • Parking lot 2
  • Laundry
  • Kitchen
  • Living room
  • Number of rooms
  • Porch
  • Cellar

Comfort

Levels

  • First floor
  • Semi basement floor
  • Mezzanine
Sei interessato a questo annuncio ? Contattaci Subito.

Lasciaci i tuoi dati per essere ricontattato da un nostro agente

non hai trovato ciò che cerchi ? crea la tua richiesta.

Agenzia riferimento

Viale Europa, 62/A - 36075 Montecchio Maggiore (VI)

REAGENCY MONTECCHIO MAGGIORE

info@reagencyitalia.it

Scopri Agenzia
Viale Trieste, 95 - 36100 Vicenza (VI)

REAGENCY VICENZA

info@reagencyitalia.it

Scopri Agenzia
Corso Giuseppe Garibaldi, 53, 36016 Thiene (VI)

REAGENCY THIENE

thiene@reagencyitalia.it

Scopri Agenzia

Sei interessato a questo annuncio? Contattaci subito!

Lasciaci i tuoi dati per essere ricontattato da un nostro agente